Search Properties

Highworth Crescent, Yate

Bristol

£300,000 Offers Over

Department:
Sales
Reference No.:
13050
Postcode:
BS37 4HW
Type:
Terraced House
Availability:
Sold
Bedrooms:
3
Bathrooms:
1
Receptions:
1
Tenure:
Freehold
Location:
Bristol
Price:
£300,000 Offers Over

Property features

  • Two double bedrooms, one single
  • No onward chain
  • Lounge / Dining room
  • Modern kitchen
  • Garden room
  • Modern shower room
  • Boarded loft with window
  • Double width driveway
  • Well tended rear garden
  • Double garage

Summary

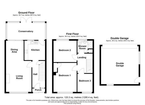
A well presented terraced house with off street parking for two cars to the front and a double garage to the rear. The property also has the addition of a conservatory/garden room to the rear together with hallway, living/dining room and kitchen on the ground floor. To the first floor are three bedrooms and a shower room. The loft has also been boarded to provide a useful extra space. To the rear is a low-maintenance level garden with a large garden shed and double garage.

Details

A well presented terraced house with off street parking for two cars to the front and a double garage to the rear.

The property also has the addition of a conservatory/garden room to the rear together with hallway, living/dining room and kitchen on the ground floor. To the first floor are three bedrooms and a shower room. The loft has also been boarded to provide a useful extra space.

To the rear is a low-maintenance level garden with a large garden shed and double garage.

ENTRANCE Double glazed sliding door with glazed panel to side leading to entrance porch.

ENTRANCE PORCH Wood panelling, vinyl flooring, double glazed door with glazed panels to side leading into entrance hallway.

ENTRANCE HALL Stairs to first floor, double panelled radiator, coving, vinyl flooring, understairs cupboard, understairs storage area.

LOUNGE/DINER 23' 9" x 11' 8" reducing to 8' 3" (7.24m x 3.56m) UPVC double glazed windows with secondary double glazing overlooking front of property, sliding UPVC doors leading to garden room, dado rail, TV aerial connection point, double panelled radiator, marble feature fireplace with inset gas fire, coving.

GARDEN ROOM 17' 4" x 8' 8" (5.28m x 2.64m) UPVC double glazed full length doors, double glazed windows to side and rear, glass roof, double panelled radiator, wall lights, dwarf wall, vinyl flooring.

KITCHEN 9' 5" x 8' 11" (2.87m x 2.72m) Range of high gloss mid-grey wall and base units with work surface over and tiled surround, sink and drainer with mixer tap, integrated eye-level oven and grill, space for American style fridge/freezer, under cabinet lighting, space and plumbing for washing machine, window overlooking garden room, coving, vinyl flooring.

LANDING Coving, access to boarded insulated loft with Velux window also housing gas combination boiler.

BEDROOM ONE 13' 4" x 10' 7" (4.06m x 3.23m) UPVC double glazed window with secondary glazing overlooking front of property, double panelled radiator, cupboard with linen shelving, coving.

BEDROOM TWO 10' 7" x 9' 11" (3.23m x 3.02m) UPVC double glazed window with secondary glazing overlooking rear garden, double panelled radiator, TV aerial connection point, coving.

BEDROOM THREE 8' 4" x 7' 1" (2.54m x 2.16m) UPVC double glazed window with secondary glazing overlooking front of property, double panelled radiator, coving.

SHOWER ROOM Double glazed window with obscure glass, full-width walk-in shower with shower head and separate attachment, vanity unit with storage cupboards and inset wash hand basin, close coupled WC, stainless steel radiator/towel warmer, coving, fitted cupboard providing storage, ceiling mounted extractor fan.

OUTSIDE

FRONT OF PROPERTY Tarmacked double width driveway providing side-by-side off street parking for two cars.

REAR GARDEN Fully enclosed, composite decking area leading to artificial grass, further lawn, raised pond, outside lighting, well tended borders with small shrubs, bushes and trees, walkway to oversized shed and double garage at rear, bin storage area.

SHED 9' 11" x 7' 11" (3.02m x 2.41m) Via double doors, windows to side, power and light, vinyl flooring, outside water tap.

DOUBLE GARAGE 17' 6" x 17' 4" (5.33m x 5.28m) Up and over door, courtesy door, windows to side and rear, power and light.

Council Tax Band - B
Tenure - Freehold

Floor Plans

EPC

Request Further Details

Or arrange a viewing